Выберите этаж и нажмите на апартаменты, чтобы узнать детали
Главная страница
/
Корпус 1
Этаж 2
Этаж 1
ПРОДАНО
ПРОДАНО
Выберите этаж и нажмите на апартаменты, чтобы узнать детали
Главная страница
/
Корпус 1
Этаж 2
Этаж 1
1 корпус, 1 этаж
49,0 м2
«White box»
9 457 000 руб.
8 232 000 руб.
«Дизайнерская под ключ»
Отделка и стоимость:
Площадь
Студия
Тип
Апартаменты №1
Заказать звонок
1 корпус, 1 этаж
41,9 м2
«Дизайнерская под ключ»
8 086 700 руб.
7 039 200 руб.
«White box»
Отделка и стоимость:
Площадь
1-комнатные
Тип
Апартаменты №2
Заказать звонок
1 корпус, 1 этаж
71,8 м2
«Дизайнерская под ключ»
13 857 400 руб.
12 062 400 руб.
«White box»
Отделка и стоимость:
Площадь
2-комнатные
Тип
Апартаменты №5
Заказать звонок
1 корпус, 1 этаж
71,3 м2
«Дизайнерская под ключ»
13 760 900 руб.
11 978 400 руб.
«White box»
Отделка и стоимость:
Площадь
2-комнатные
Тип
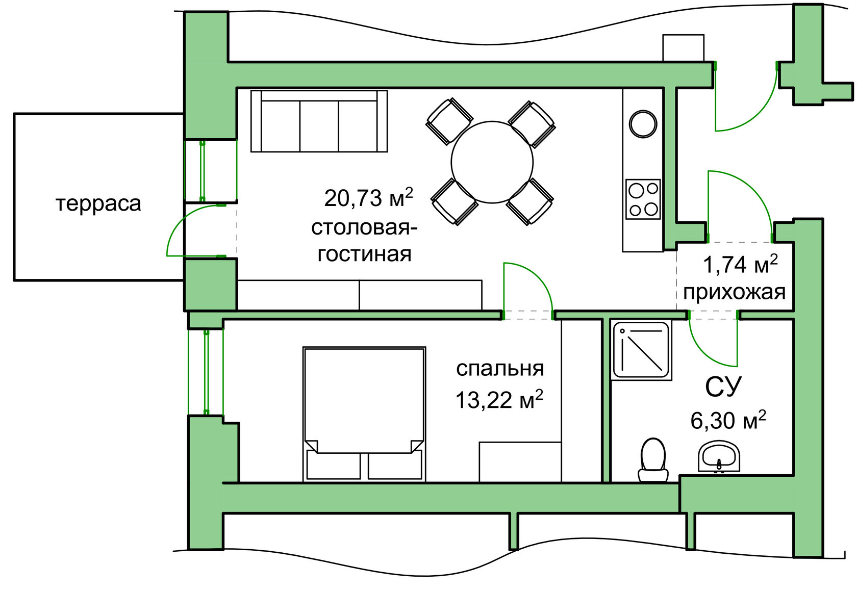
Апартаменты №6
Заказать звонок
1 корпус, 2 этаж
48,8 м2
«Дизайнерская под ключ»
9 418 400 руб.
8 198 400 руб.
«White box»
Отделка и стоимость:
Площадь
Студия
Тип
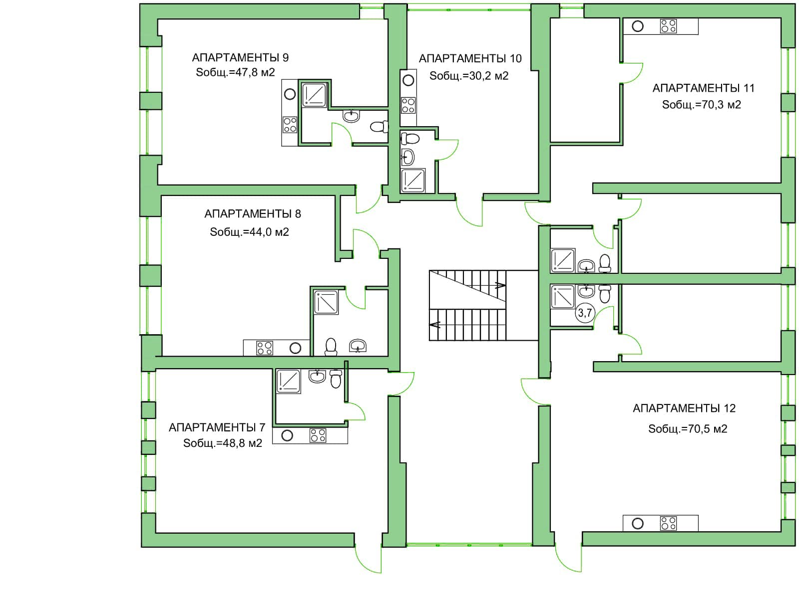
Апартаменты №7
Заказать звонок
1 корпус, 2 этаж
44,0 м2
«Дизайнерская под ключ»
8 492 000 руб.
7 392 000 руб.
«White box»
Отделка и стоимость:
Площадь
Студия
Тип
Апартаменты №8
Заказать звонок
1 корпус, 2 этаж
47,8 м2
«Дизайнерская под ключ»
9 225 400 руб.
8 030 400 руб.
«White box»
Отделка и стоимость:
Площадь
Студия
Тип
Апартаменты №9
Заказать звонок
1 корпус, 2 этаж
30,2 м2
«Дизайнерская под ключ»
5 828 600 руб.
5 073 600 руб.
«White box»
Отделка и стоимость:
Площадь
Студия
Тип
Апартаменты №10
Заказать звонок
1 корпус, 2 этаж
70,3 м2
«Дизайнерская под ключ»
13 567 900 руб.
11 810 400 руб.
«White box»
Отделка и стоимость:
Площадь
2-комнатные
Тип
Апартаменты №11
Заказать звонок
1 корпус, 2 этаж
70,5 м2
«Дизайнерская под ключ»
13 606 500 руб.
11 844 000 руб.
«White box»
Отделка и стоимость:
Площадь
1-комнатные
Тип
Апартаменты №12
Заказать звонок
Оставьте заявку на звонок
Мы с радостью ответим на все вопросы и подберем для Вас лучшие условия!
Ваше имя
Ваш телефон
Ваш email
Оставить заявку
Отправляя заявку, вы даете согласие на
обработку персональных данных
, указанных в форме